Feriendorf im Harz

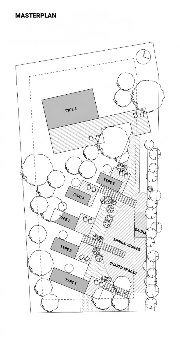
In Hahnenklee im Harz ist auf einem rund 2000 Quadratmeter großen Grundstück ein neues Ferienkonzept geplant. Mehrere Tiny Häuser sollen hier entstehen, mit freiem Blick auf die Skipiste und die Seilbahn, die sich den Hang hinaufzieht. Die Lage verbindet Natur, Wintersport und Erholung an einem der bekanntesten Ferienorte im Harz.

Die kleinen Häuser sind als eigenständige Ferienunterkünfte gedacht, mit privaten Terrassen und Ausrichtung zur Landschaft. Gäste wohnen ruhig und abgeschirmt, während sich gleichzeitig das Gefühl eines kleinen Feriendorfs entwickelt. Für Betreiber eröffnet ein solches Konzept attraktive Möglichkeiten in der touristischen Vermietung. Der Standort lebt von Wintersport, Wanderern und Wochenendgästen, wodurch sich eine ganzjährige Auslastung erreichen lässt.

Die geplanten Häuser werden nach den Anforderungen des GEG errichtet und sind damit dauerhaft nutzbar. Gerade in einer gefragten Ferienregion wie dem Harz kann ein solches Projekt wirtschaftlich schnell tragen. Die Kombination aus kompakter Bauweise, begehrter Lage und flexibler Ferienvermietung macht Tiny Häuser hier zu einem Modell, das touristische Nachfrage und wirtschaftliche Perspektive zusammenführt.